前段时间,明源君分享了万科、融创他们针对防疫做的新户型,很多人留言说想看刚需户型的升级进化,毕竟刚需户型受面积所限,很多功能都无法实现。
事实上,疫情过后,刚需客户会有两个明显变化。一是受疫情影响,收入减少,购买力降低了,原本计划买90平,现在可能只敢买80平。二是隔离期在家宅了两个月,对房子品质更加挑剔了。
说白了,购买力降低了,但是也不想降低对品质的追求,心理上变得更挑剔。这就对开发商提出了新的要求:如何在总价不变的情况下,对刚需户型进行升级?
据周燕珉工作室调研显示,疫情期间,客户的住宅槽点排行前三的分别是,收纳空间不足、没有居家办公空间和运动休闲空间。此前,赛拉维调研显示,客户最不满意的功能空间是客厅、餐厅和厨房。
从调研反馈来看,很多槽点其实不是面积大小的问题,而是户型布局和功能空间配置的问题,如果户型布局不合理,面积再大,家里也会很乱,住得糟心。
今天,明源君梳理一下,疫情过后,90平三房120四房等刚需户型该如何升级进化,抛砖引玉,希望能带给大家一些启发。
玄关设计更精细
叠加家政功能
明源君曾经在《疫情过后,什么样的房子更好卖?》一文里面提过,经过这次疫情后,独立封闭式玄关在未来一段时间会成为刚需。
对于改善户型,可以设立带有洗手、消毒、收纳功能的独立玄关。但是在大城市寸土寸金,有些三房面积只有七八十平,拿几平米出来做玄关会显得很奢侈。这个时候如何通过户型设计巧妙变通?
一、 次卫设于入户处,如厕+消洗
日本很多住宅会在入户处设计洗手池,引导业主养成回家洗手的习惯。疫情之后,大家也更懂得了洗手的重要性。对于面积受限的小户型,玄关处没有多余的面积设立洗手台了,怎么办?
如果户型设有两个卫生间,可以将其中一个次卫放在入户旁边,这样进门可以先洗手消毒。
如果只有一个卫生间,也尽量设计在靠门厅比较近的地方。很多户型中,卫生间距离门厅都比较远,住户回家以后得一直走进比较靠里的卫生间才能洗手,这就带来了潜在的感染风险。
二、玄关叠加家政功能
还有户型把入户花园做成了玄关和家政区,设有洗手台,并摆放洗衣机、收纳柜,折叠式晾衣架等等。从外面回家先洗手消毒,把外套脱下来消毒或直接放进洗衣机清洗,这样景观阳台就有更多的空间设置其他的场景。
再有一种设计手法是把家政阳台设在入户旁边,形成一个可临时封闭的独立玄关+家政间。特殊时期,在阳台增加洗手池,消洗功能在这个空间完成,生活恢复正常后,可以把玄关右边这个门关上。
三、玄关柜增加消洗功能
如果玄关面积比较小,只放得下玄关柜,像这个76平三房户型,非常紧凑了,几乎没有多余空间了。这种情况下,可以考虑将消洗功能整合到玄关柜。
例如,新城就直接在玄关柜增加消洗功能。其实非常简单,首先,玄关柜中间摆放免洗洗手液,一回来就可以用免洗洗手液给双手消毒,外套脱下挂在玄关柜右边,有需要可以增加紫外线消毒,鞋子放到消毒鞋柜。这样总比穿过客厅去洗手来得安全多了。
客餐厅设计
强调联动可变、多中心
之前我们提到,客户宅在家里最大一个痛点是客厅功能太单一,只能看电视、会客,除此无法进行其他活动,久而久之,就会感觉憋屈无聊。
以前客厅是家人聚集的中心、活动的唯一空间,但现在客厅已经不是唯一的活动中心了。如何通过设计释放更多活动空间?
一、空间化零为整、灵活可变
最常见的是客厅、餐厅、厨房和阳台进行一体化设计,将原本割裂的空间变成完整的大空间,再通过灵活可变的空间或家具来切换不同模式,实现不同功能转换。比如旭辉第六代产品中提出的巨厅设计理念,保利Well 集合社区中提出的“LDKB公区联动”设计,都是这个设计理念的延伸。
比如北京万科在很多90平户型中引入了移门系统,让空间变化更简单便捷。客厅通过移门的开合可以形成双面宽大客厅,当家里来了客人则可以通过移门隔出一间次卧,这样一来,客厅右侧空间得到最大化的利用。
这种设计还有一个好处是,通过客厅将一个卧室分离出来,特殊时期可以作为隔离区域。日常生活中,这种设计也有利于代际之间的关系和谐。
疫情隔离期间,很多婆婆与媳妇长时间相处在一起,就很容易产生矛盾。而且年轻人和老人作息时间不同,卧室集中在一起,很容易相互干扰。
二、从单一活动中心向多元中心转变
餐客厅一体化虽然能优化出完整的大空间,但也存在一个明显的弊端:家里每个人需求都不同,如果是三代同堂居住,爷爷要看电视,孩子要玩游戏,大人要办公,这个时候在同一空间里就容易相互干扰。
上海柏涛西南事业部提出一个设计理念,即在面积不变的情况下,把起居空间一分为三,形成三代三厅的布局。
来源:柏錦堂
这样一来,每个人都有自己的活动空间,互不干扰。但这套户型套内面积达到129.24,只适合改善或豪宅客户。,
对于刚需户型,更接地气的设计是提高空间利用率,设计更多的活动中心。比如除了客厅,餐厅、阳台、空置的房间等空间可以充分利用起来。
餐厨空间也可以是很好的活动或亲子交流空间。
比如在餐厅摆放一张六人餐桌,家人可以坐在一起交流、做饭,可以带着小孩在这里玩游戏、做手工,进一步提高餐厅空间利用率。
保利125平户型中,儿童房可分可合,只有一个孩子时,可变区域可以作为活动空间,二胎出生后,也可以改为双儿童房。
图片来源:POLY技术汇
四、家政功能内置,解放景观阳台空间
很多刚需户型没有布置办公空间,大人需要办公或小孩做作业只好在餐桌上进行,但如果同时在餐桌上办公写作业,又容易相互干扰。
因此,通过其他空间来
现在大部分新房都设计南北双阳台,一般把家政功能和晾晒衣服放在工作阳台。这样可以解放南阳台的晾晒空间,把景观阳台空间打造成办公区、种植区、健身区、茶室等。
如果没有设计生活阳台,或者生活阳台太小,则可以考虑内置家政功能。比如现在干衣机开始流行,有了干衣机就不需要晾晒衣服了。明源君前段时间计划装修,就有设计师建议把家政区放在室内,比如将家政区与卫生间外的走廊结合,这样还能缩短洗衣动线。
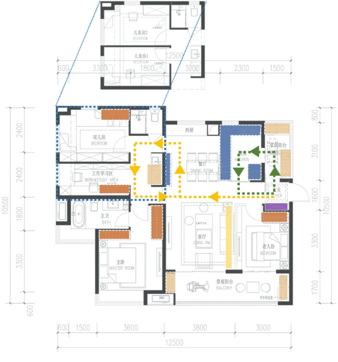
五、动线优化设计,增加趣味空间
除了释放活动空间,通过洄游动线设计也能增加活动范围,提高空间趣味性。
洄游动线还可以提高做家务效率。比如保利在95平户型上,打造了一条“KWB高效家政洄游动线”。不管是做饭流线和洗衣服流线,都大大缩短了。
厨卫空间强调健康设计
干湿分离是趋势
厨卫空间可能是使用频率最高的两个区域了。但这两个空间通常也是紧凑户型中,占面积最小的两个空间。如何提升这两个空间的利用率和舒适度?
一、卫生间做好干湿分区/离设计很重要
卫生间作为使用频率最高的公区,容易藏污纳垢。尤其有些房子卫生间是暗卫,接触不到阳光,加上干湿不分,室内潮湿,就很容易造成空气浑浊细菌滋生严重。
对于现代家庭,卫生间设置明卫窗户和干湿分区势在必行。
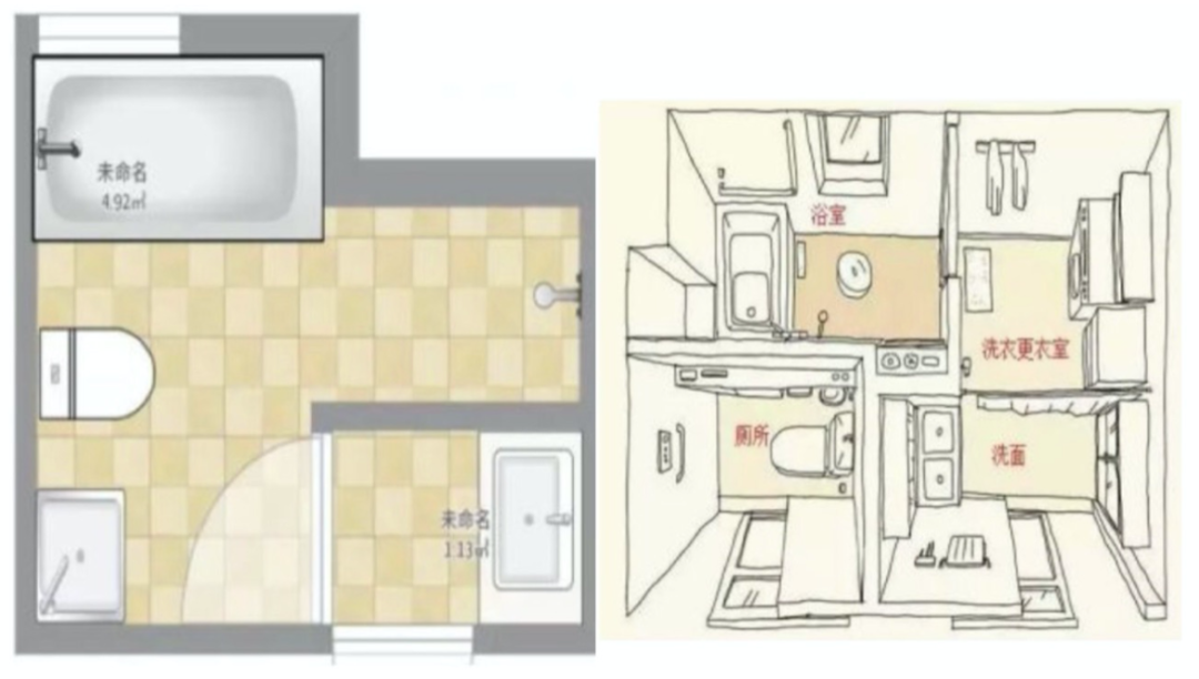
住宅设计专家周燕珉教授认为,很多干湿分区设计其实存在误区,以为设个帘子和淋浴屏就是干湿分区了,没有考虑到淋浴区的水带出的问题,如果淋浴区的水带出干区,另外一个人去上厕所就容易踩脏地面,甚至容易滑倒。为此,卫生间干湿分区设计要控制淋浴区的水不带出,可以设置地垫,而且马桶尽量设在靠门处,减少动线交叉。
图源:周燕珉工作室
对于三代同堂家庭,如果家里只有一个卫生间,就会出现排队上洗手间的情况。
很多人认为两个卫生间应该是标配,但在一线城市,多一个卫生间可能就多了几十万。目前主流的解决方案是采用干湿分离设计。
干湿分离有很多种方式,根据面积的不同有不同的分离方式。目前最常见的是二式分离,这种也是最节省空间的,即洗面+马桶和浴室,把洗手台功能单独出来。
如果面积够大,还可以设置三式(4.5~8平米,浴室+淋浴+厕位)、四式分离(8平以上,浴室+洗面+家务+厕位)。
如果家里人比较多,三代同堂,只有一个卫生间还是非常不方便。
早几年,万科、龙湖等标杆房企就提出了1.5卫的设计,即增加一个只有马桶的卫生间,两个卫生间集中在一个区域,共用一个洗手台。等于增加了一个如厕的空间,能很好地避免人口多的家庭排队等厕所的情况。
图源:济南房地产网
这种设计能充分利用空间,但私密性欠佳。
同样,除了分离设计,卫生间各种设施也应该进行升级优化。比如地漏采用防返臭体系,马桶采用高压冲洗器等等。
二、厨房部分功能外移,缓解空间压力
很多厨房都很小,甚至只有3、4平米,而且功能单一,只能做中餐。但现在客户生活方式发生了很大变化,大家除了中餐还喜欢做做烘焙,偶尔吃吃西餐,厨房里电器越来越多,不小心就堆满了。
上海万科的做法是将中式厨房的一部分功能转移到西厨,在西厨后做了大L型收纳墙,收纳量瞬间就翻倍了。这样就解决了厨房小,放不下电器厨具的问题。
另外,现在很多厨房都做出可分可合的形式,目的是为了打造餐厨社交空间,增加家人之间的情感交流。
家居作家逯薇在书籍《小家越住越大3》中指出,很多设计师希望通过可分可合的厨房提高餐厨空间交流,但大家都忽略了一个事实,其实只有厨房水槽面向餐厅,厨房的人才能跟餐厅的人有交流。
因为人在厨房忙碌,大部分时间都在水槽边上洗洗刷刷,如果水槽设在窗户或墙壁前,人一直对着窗户或墙壁,就无法跟在餐厅的人交流。只有人面向餐厅时,才会有视线交汇,才会有更密切的沟通。
精细化设计
不浪费一平米空间
对于刚需紧凑户型,如何提高空间利用率大家最为关心的。一方面是要做好收纳体系,这个标准化程度都非常高了,另一方面是在精细化设计上下功夫,把每一平米空间都抠出来,用到极致。下面明源君梳理了一些提高空间利用率的小技巧。
1、卧室门不靠墙角开,往中间开
如果卧室开门的墙不是承重墙,可以将卧室门开往中间移动一下,把原来墙边的衣柜减少60厘米,门后面就可以增加收纳空间了。
图片来源:居住进化
2、衣柜转角空间朝走廊
很多卧室做有衣帽间,但衣柜的转角处比较深,难以很好地利用,可以将这一部分空间面向走廊,用来储藏公共物品。
3、走廊除了交通功能,还可以增加其他功能
很多户型走廊都有好几平,如果纯粹拿来走人会比较浪费,可以考虑在走廊单侧或双侧布置收纳或其他功能。
比如上文明源君,结合走廊布置洗手台以及家政柜,这种设计大大提升了走廊利用率。
3、餐厅用卡座替代椅子
餐厅的空间设计中,还有一个有效提升空间利用率的手法,那就是使用卡座替代传统椅子。
因为卡座通常靠墙,就省去了椅子和椅子之间的空隙,有限的空间可以容纳更多人,空间效率更高,特别适合短而窄的餐厅。而且可以在侧边加收纳空间。
4、厨房水池旁做外翻式薄柜
日本橱柜中,会在水池边缘设置外翻式薄柜,里面放一些长条形的物品,比如保鲜袋、擀面杖、包装纸等。
图源:周燕珉工作室
5、飘窗转角增加2平米,多个休闲空间
世茂将转角飘窗增加2平米后,可以增加休闲或办公空间,而且开窗面增大,室内采光更佳,每天心情都能美美的。
本文参考资料:《小家越住越大3》逯薇;《周燕珉 | 新冠疫情下对住宅设计的再思考》周燕珉工作室;《多了衣柜还不撞人,只要改一下卧室门》居住进化等



