前几天,明源君留意到一个数据,据CRIC监测数据显示,四房成交占比越来越高了。
CRIC重点监测了126个城市各户型成交套数,其中三房占比高达53.1%,稳居成交主力,四房比重升至18.6%紧随其后。但就增速而言,四房相较于2018年上涨了2.5个百分点,同比增幅居首。
在四房产品中,120平~140平面积段又成了成交的主力。
其实这个趋势并不难预料,随着二胎政策的普及,很多家庭由原来的三口之家变成了六口几家,家庭成员变多,居住空间需求也有所改变,四房逐渐成为了标配。
房企根据二孩家庭的需求,也在逐渐加大投入研发适合二胎家庭的户型。经过几年探索,现在标杆房企改善四房有哪些研究成果?明源君结合案例跟大家聊一聊。
1
紧凑型刚需四房
强调实用和性价比
当前四房主流面积是120平~140平,尤其在房价高企的一二线城市,120平左右的四房更常见。但120平四房要满足六口之家的需求,设计难度不是一般大。
压缩面积最大的难点,就是要兼顾居住的舒适度,保护居住者的尊严。尤其是现在客户对于产品的需求越来越苛刻,紧凑型户型设计往往在一些地方下功夫:
① 空间利用率进一步提高,不浪费一平米。
② 动线优化,避免过道面积地浪费。
③ 各个功能空间尺度合理,居住体验有所提升。
④ 户型更通透,刚需户型的采光、通风也不降标。
⑤ 兼顾隐私需求,例如主卧可以做到完整套房,比如衣帽间,提高私密性。
一、户型布局强调提高利用率
从目前主流的四房户型来看,有两种户型布局比较主流,一是四叶草户型,即4个卧室分布在房子的四角,互不干扰。四叶草户型的优点是能最大限度减少室内过道面积的浪费,将更多空间纳入到客餐厅,形成一个整体的大空间。
另一方面,由于房间分布在客厅两侧,灵活性更大,其中一间次卧与客厅可分开可合并,比如孩子还小,可以把空间并入客厅,为孩子提供更开阔的活动空间,当孩子长大需要独立空间,就可以改造成一间房。
不足是如果入户次卧不是套房,就要穿过客厅才能去到卫生间,不够便捷。
另一种是四开间朝南的布局,一般为三卧+客厅或两卧+横向客餐厅。缺点是入户卧室用洗手间要穿过客厅,进门卧室入口影响客厅完整性,走道浪费面积大。
比如杭州雅棠轩约139㎡四房两卫,甚至做到五开间朝南,且南向总面宽有约16.4米。不过老人房和其他次卧挨在一起,休息时间容易被打扰。
二、主卧套房设计是标配,功能空间强调满足基本需求
紧凑型四房,强调户型空间尺度的合理性,首先需要满足主要空间的使用需求。比如
优先考虑主卧套房、客厅、老人房三个空间的尺度设计,其它次卧空间不刻意追求面积尺度。
140平以下能做到双套房设计可以说很优秀了,比如这个项目130平四房户型做到了双套房设计,但另外两个次卧空间会显得比较局促。
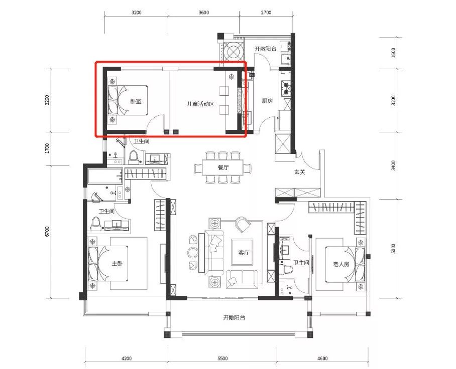
这个不到120平的四房户型,也做到了双套房设计,整个空间非常紧凑,四个房间分布在客餐厅两边,但卧室门不直接朝向客厅。虽然动静分区不那么明显,但影响可以减到最弱。不足是没有生活阳台。
由于面积紧凑,这类四房户型很难做到客餐厅独立,反而更注重客餐厅一体化设计。主卧会有非独立衣帽间设计、非浴缸设计,一般面积如果在120㎡以下,做独立衣帽间反而会让卧室空间感到局促了。
比如珠海龙湖这个118平4房做了客餐厅一体化设计,但餐厨的关系比较远,而且餐厅的空间相对有些局促。但是整体来说,户型方正舒适。
这个户型还有一个很大的亮点,是把景观做到了极致!一是主卧有一个270°的南向超大飘窗,二是次卧和客厅连通以后,形成一个长达7米的超大阳台;三是整个窗墙比达到47%,比普通房子高出50%以上。
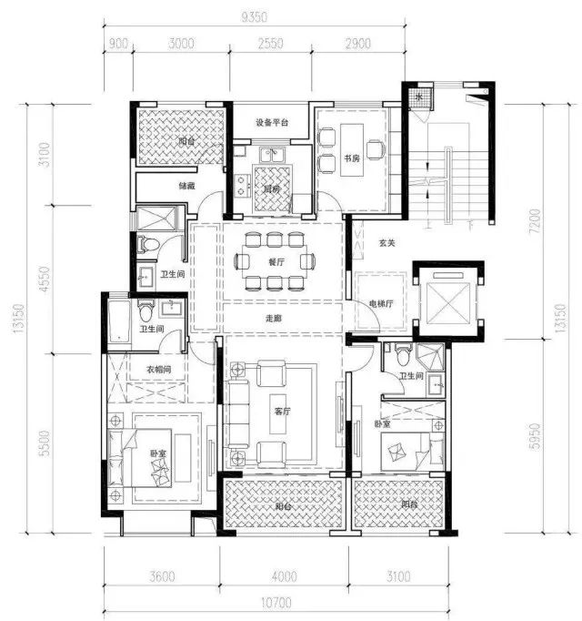
成都中铁建126平四房,客餐厅一体化设计形成相对完整的空间,景观阳台空间非常大,有一半阳台的进深达到了2.4米,而且主卧套房有独立衣帽间设计,尺度感强。不足就是书房的房间开间较小,主卧的私密性不够强。
而中铁建西派浣花整个阳台空间更打动人,进深到了2.4m。
三、收纳精细化
由于家庭成员增加了,每个人的东西一多,家里容易变得杂乱,增加收纳空间非常重要。以玄关为例,科很多项目在玄关配备了容量巨大的HD玄关一体柜,折算总容纳面积相当于69个20寸登机箱的容纳量。
2
改善型四房
场景升级才能打动客户
相比刚需客户更看重价格不同,改善型四房客户对价格敏感度有所降低,更强调居住舒适度。
曾经有房企做过调研,这个类型产品的目标客户有几个明显特征:一是以中产阶级为主,他们非常重视子女的教育;二是买什么户型往往是女主人说了算;三是女主人在家时间比较多,他们对餐厅、阳台等区域的空间要求更高;四是对于居住体验要求更苛刻。
他们希望的面积段约在140平~180平,大部分属于再改客户,这类产品设计要注意几个要点:
① 户型布局强调私密性、仪式感,尽量做到双套房设计
② 各个功能空间尺度合理,居住体验有所提升
③ 更注重客餐厅设计,双阳台提升舒适度
④ 主卧套房设计更加强调品质
一、户型布局强调舒适度,各空间尺度合理
严格来说,再改产品其实还可以根据不同面积段细分为2个阶段,舒适型以及享受型。但不管是什么类别,要确保的是各功能空间的功能要到位,而且室内空间每个区域的尺度必须都要有所保证。
而且值得注意的是,相比紧凑型四房,改善型四房要在每个场景都有进一步的优化,才会打动越来越挑剔的改善客户。
简单来说,每个功能空间的尺度感放大了,除了客厅、卧室等空间,厨房、阳台、餐厅等,也要尽可能留出舒适的尺度。例如很多二胎家庭都会为小孩添置一台专用洗衣机,那生活阳台是否能摆放两台洗衣机?
比如这款143㎡四房户型,客厅、卫生间和厨房等主要功能间比例适中,房间面积分配较平均,实用性更强。而且做到了南北通透双阳台设计,但客厅开间只有4米,对于紧凑型四房没有明显提升。
永威上和府160平四房两厅三卫,面积增加了,发挥空间也更大,基本能满足各方面的设计要求,大面宽、双阳台、双套房三卫浴、生活动线合理,约13.3米面宽,三开间朝南,舒适度非常高。
而且,通过增加产品面宽、增加南向开间可以有效扩大房子的采光面,从而增强户型的舒适性。目前标杆房企推出的改善型四房,很多面宽都做到了10m以上,而四开间朝南也成为当下主流。
康桥悦蓉园180㎡四房两厅三卫,客厅大面宽,加之客餐厅一体的设计,不仅增加整体采光,还最大化利用了空间。
二、客餐厅空间为设计重点,双阳台提升舒适度
对于再改客户来说,对户型的关注度主要是房间数量要够,往往为了达到房间数量,导致公共空间被无限压缩。现在,家庭核心区或多功能空间的概念开始流行,更强调家人之间的互动、情感交流,因此会在户型中预留开敞的多功能空间,灵活可变。
之前,明源君分享过旭辉最新一代产品,他们提出了“巨厅”的概念。具体来说,就是通过优化设计,尽可能减少过道等所占面积,并且把书房、厨房、阳台、玄关等一切可能并入客厅的面积,和客厅一体化。
合肥旭辉这个约150㎡四房,大面宽、大横厅,一家人有了更好的互动空间。生日、纪念日,可以直接在家里开PARTY,请很多朋友来。
比如成都的万科玖西堂就考虑到了父母与孩子的互动空间,在客厅处设立了亲子互动区。
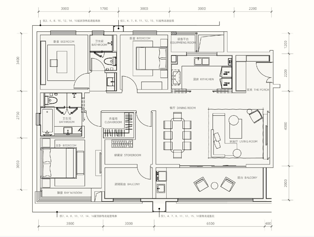
上面提到这类目标客群非常重视在子女教育的投入。比如中铁建西派系产品客厅设计中提出1.5厅的概念,即西派系6.8—7米的客厅开间设计中,除考虑电视、茶几、沙发所需要的空间外,还特意留出了可供摆放钢琴的区域。
三、主卧小家化设计
现在户型设计除了物理指标,更关注家人在空间里的关系。比如有了孩子以后,夫妻就很难过上二人世界,大家每天出去都在忙工作,回家就是忙孩子忙老人,等到夜深人静回到卧室,已经很累,2人之间的深入交流越来越少。
现在对于主卧有一个设计趋势,就是全功能化,夫妻两人关上门可以喝茶谈心,重温二人世界。
以南宁万科这个170平四房为例,主卧面积达到了36平,飘窗5.5米,空间阔绰,能够摆得下衣柜、化妆柜、休闲沙发、茶几等家具。
美中不足的地方是入户卧室的卫生间采光、通风欠佳,客餐厅进深比较大,通透性会会较差。
小结
明源君在研究四房户型过程中发现,市场上户型同质化越来越严重了,让人眼前一亮的创新相对较少。究其原因,产品标准化一定程度上降低了一线创新的动力,另一方面,房企对于细分客户需求的洞察力还不够,更多还停留在物理指标的简单复制。明源君认为,房企要做出让客户尖叫的产品,一定原创户型,并且要往更精细化、更洞察客户内心的方向去探索。



