前两天,霸占热搜榜多时的爆款电视剧《三十而已》终于大结局了。
不知道大家看完后有什么感受?反正明源君刷剧的时候,看得最认真的就是顾佳他们家的大平层豪宅了。
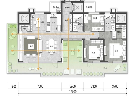
很多网友好奇,他们住的到底是上海哪个楼盘?最后被扒出来的是,外景是拼凑的,内景是剧组搭建的。不过还是有设计大神按照剧中场景还原了户型图:
该平面仅供交流娱乐,并非官方用图;来源:公众号小舍计
虽然整个户型有一一些bug,比如儿童房没有窗户、客卫没有,但明源君发现,他们户型布局有不少亮点:
①整个社交餐厅的占比非常大,强调社交和家人情感交流
②沙发区不再是客厅焦点,反而长餐桌利用率更高,一家人除了吃饭,工作、娱乐、交流都转移到这里。客厅取消了电视,而餐桌旁配备了投影
③沙发区面积占比变小,从以前看电视的空间变成家人或朋友聊天空间
④主卧非常奢华,主卫配置非常高,外置浴缸泡澡之余还能欣赏江景,同时也设有夫妻聊天的私密空间
可以说,这款户型比当下市场上很多大平层户型都要优秀。明源君在网上随便搜几个180平户型,很多都是这种设计:
你会发现相比90平三房,这个180平大平层最大的变化是卫生间数量多了,房间数量增加了,但其他场景基本都是一样的。生活方式没有任何迭代,沙发、茶几、电视三件套仍然是客厅的主角,在家也就是吃饭、看电视、睡觉。
有业内人士将这种只放大尺度和增加房间数量的户型,称为大号刚需,这样的户型设计无疑已经很难跟得上时代了。
据明源君观察,现在的大平层户型要获得客户欢心,以下几个设计趋势要把握住。下面明源君结合案例来帮大家做一个梳理。
动区设计更精细化
强调社交化、户外化
明源君之前讲过,改善项目在客厅设计上不再以传统沙发电视为中心,而是增设了大量活动空间。
相比改善和刚需项目,豪宅对动区的需求其实会更多元化,因为他们不需要上班,白天会有很长时间呆在家里。但很多项目为客户营造的仍然是白天上班,晚上回家吃饭、洗澡、睡觉的生活模式,以后这种户型会越来越难打。
对于豪宅客户,他们白天在家会做什么?吃饭、处理工作、聊天、娱乐、聚会或者做料理等等,如何满足他们这些场景呢?
一、社交餐厅成为风尚,中西厨+岛台成为标配
据明源君观察,现在真正的豪宅产品,开放式厨房和超大中岛基本成了标配。
因为这两年住宅设计都非常强调社交空间的打造,比如可分可合开放式厨房,餐厨一体化等设计,本质都是为了促进家人之前的情感交流。
比如顾佳在剧中的房子,开放式厨房、中岛、餐桌组成了3重交流空间,整个社交餐厅的占地比例是整个住宅中最大的。
家人或朋友在一起做饭、吃饭、聊天、做料理,平时许子言在餐桌上做作业,顾佳在做岛台上做沙发、做烘焙,抬头,可以随时跟他对视、聊天,虽然大家都在忙自己的事情,但会感觉到彼此的陪伴,有助于促进家人的感情交流。
比如中铁成都某项目188平户型,公区至少给出了4组场景。
①茶室,家人可以聚在一起喝茶聊天
②社交厨房,开放式厨房加中岛,可以一边在厨房操作一边跟餐厅的人互动
③家庭起居室:一家人在一起看电视、聊天
④开放式书房:男主人可以在这里看书、处理工作
如果加上健身房,就一共有5组场景,平时可以在健身房锻炼身体。
二、沙发区不再是客厅焦点,多功能区提升体验
以前豪宅项目客厅一般兼有家庭厅和会客厅功能,但经过疫情后,越来越多客户会更加注重隐私,倾向于将会客功能向社区会所转移。而客厅空间则更加多元化,根据不同需求打造不同场景。
1、动区面积占比提升
当然,前提是动区需要有足够大的空间。所以现在有个比较明显的趋势,大平层户型动区占比面积越来越大,很多项目不再盲目追求房间数量,而更注重客户动区的活动体验。
比如北京中海有个项目200平四房户型,动静区面积比高达1:1,即便是150平三房,客餐厅形成的共享空间面积也达到50平。
北京金茂某项目180平米户型,客厅面宽8米,整个客餐厅一体化空间达到66.4平,相当于一个一线城市小两房的面积了,有利于打造各种场景。
2、传统客厅过时了,沙发区不再是焦点
如果公区面积较小,一张大长桌的利用率可能比沙发来的高,于是客厅中心逐渐从沙发往长桌转移,沙发越来越短,餐桌越来越长。
顾佳的房子,其实就体现出较明显的趋势。他们还取消了客厅的电视,而选择在餐桌旁配了投影。
融创西南在”中国家庭健康欢乐家“中,将客厅划分为读书、用餐、运动、音乐等功能空间,彼此相连又互不打扰。其中,学习区就在长餐桌旁边,父母可以坐在旁边辅导,也可以一起在长桌上做手工。
144平米户型图,图源:融创西南
功能空间效果图,图源:融创西南
三、户外空间庭院化,增加休闲空间
大平层一直被拿来用别墅比较,但事实上,现在很多大平层豪宅的户型设计越来越别墅化了。其中一个表现是突出别墅特有的室外空间,比如通过阳台或露台的手法制造出私家花园的概念。
比如北京云翔设计在今年新发布的产品。由于将叠墅中的中叠做成了大平层,可以通过室外露台、阳台,营造出了别墅的私家庭院的意境。
图源:云翔设计
前两年重庆龙湖发布的一个户型也是类似的思路,每户都有一个高6米的院子。
这个户型整个院子跟普通的景观阳台有很大不同,它是三面围合起来的。给人一种真正的后院的感觉,大人在室内的各个空间都可以看到院子,将景观与建筑很好地能融合在一起,小孩子在院子玩的时候,家人也能照看着。
龙湖晴川揽境套内约177平米
对于院子私密性来说,院子的顶上对应的都是实墙,从楼上看不到楼下。
来源:搜建筑
重庆万科推出的网红盘,192平4-6层标准户型,露台长17米,宽1.5-3米,也有将近40平的活动空间,这样的空间就不光是坐在这里看看风景了,功能性非常强了,可以在这里看书晒太阳,还能种花种草聚餐喝茶。
入户玄关
突出尊贵感、功能性
对于豪宅来说,体现权势感和地位感的细节都能够给产品添彩。所以豪宅项目在归家动线打造上,特别注重突出尊贵感。
一、豪华入户大堂是基本动作
顾佳入住的豪宅入户大堂非常豪华,层高达到9米,还有各种奢华的用材。
顾佳豪宅大堂剧照
万科在天津某豪宅项目,据说入口大堂有约18米高的挑空,中间摆放的艺术装置特别炫,不知道未来是否会保留。
入户大堂示意效果图
二、双开门、玄关组合设计,强化居住尊崇感
入户方式一直是大平层户型重点设计的细节,因为高端客户都非常注重隐私,并追求生活的仪式感。
例如深圳招商太子湾·湾玺采用双入户设计,例如主人私家电梯出来,并不像其他豪宅一样直接入户,而是一个霸气的欧式双开大门,门前的缓冲空间让归家充满仪式感。保姆有专用电梯,主仆动线完全不交叉。
再看康桥这个项目235平的户型,双电梯入户,最大程度做到了尊重个人隐私、主次分明。
华润瑞府通过玄关隐形门设计,把客厅餐厅和卧室区完全隔开,实现主客动线完全分离。如果家里人回来,发现家里有人在接待和会客,就可以直接进入到生活区域,相互之间互不打扰。
三、玄关设计,功能复合,洁污分区
相比刚需和改善单一玄关设置,大平层在玄关数量和功能上都有所提升。
一方面是普遍有双玄关设计,另一方面是玄关功能更加强大,涵盖收纳、提升业主私密性、优化动线、消杀等复合功能,也会更重视玄关的观赏性和仪式感。
1、双玄关设计
比如《三十而已》中王太太的顶层复式豪宅,就将部分玄关功能放在电梯厅,在这里完成换鞋动作。
现实中沈阳金地有多个户型也同样采用电梯厅+入户玄关设计,户外玄关承担收纳换鞋等功能,户内玄关则可以注重装饰、展示功能。
香港置地在重庆打造的大平层户型,入户玄关空间,采用大理石、玉石水刀拼花,打造入户空间仪式感。
入户玄关空间,样板间实拍图;来源:房地产观察家
2、专梯入户,净脏分区
很多改善项目会按照洁净需求来区分动线。
比如融创西南打造了一个超级玄关,根据洁净需求,区分双动线入户,需要拆快递、深度消毒的走右边的动线,平时归家走左边的动线,如果一回家就洗澡,洗完澡可以直接从卫生间穿出去晾晒衣服,非常方便高效。
超级玄关入户消洗路线图
超级玄关洗浴更衣动线图,图源:融创西南
大平层豪宅一般都是专梯入户。比如保利天悦系产品,业主入户前可以先在专用电梯厅消毒,避免室内污染,降低疫情风险。
世茂对于电梯厅入户的豪宅项目,还设置了电梯自动消毒功能,只要有人用过后,电梯会自动消毒,大大提升客户的安全感。
主卧增加情趣空间,维温夫妻感情
大平层豪宅一向很注重主卧套房打造,强调卧室的享受,衣帽间、主卫、化妆间成了标配。
比如顾佳的房子,主卧是一个大套间,带有独立的衣帽间和带浴缸的超大主卫。衣帽间收纳功能强大,设计了专门的衣服、包包、鞋子的收纳区。
主卫非常豪华,双台盆洗漱区,独立马桶区,独立淋浴区,还有外置的浴缸泡澡区,可以一边泡澡一边欣赏江边夜景,简直不要太惬意了。
图源:公众号小舍计
现实中,南通万科有一款大平层户型,主卧空间也非常奢华,配置超大主卫、衣帽间以及化妆间,这样的设计很容易俘虏女主人的心。
约230平米户型布置参考图
与此同时,主卧开始增加更多趣味空间,比如世茂在主卧配置mini吧和mini冰箱,融创
华中创新户型,在主卧空间融合了工作、休憩、休闲等功能模块。还有一些地产项目将书房放到了主卧。
这样一来,夫妻两人在主卧既可以独立处理工作,也可以约会,有心情时在一起小酌一杯,聊聊天,看看电影,找回初恋时的激情。
除了主卧更加奢华,对于其他家庭成员的居住舒适度和私密性也不能忽略。比如北京葛洲坝某项目240㎡三房大平层,做了全套房设计,其中有2个套房配置了衣帽间,重视每个人的居住体验。
图源:北京葛洲坝
健康设计从配套设施上发力
疫情后,客户越来越看重居住环境是否健康。其实,大平层项目在这方面做得已经比较到位了,例如新风系统、净水系统、静音系统等等,都是基础配置了。而经历过疫情后,客户对健康的环境的重视从室内延伸到了室外。那么,如何进一步提升呢?
一方面,除了要将室内环境做到极致,更要重视健康配套的引入。
以前,大平层项目的配套设施都非常丰富,配套主题以社交、娱乐为主,未来预计会从娱乐慢慢转向健康生活,比如泳池、健身房是基础配套,高级一点会有桑拿房、按摩服务等等。
如果可以引入医疗配套或健康管理服务,给业主家庭成员建立健康档案,提供一对一医疗服务,相信会成为项目重要加分项。
另一方面,通过黑科技从服务上做优化。
这个很多项目都有在做,智慧社区,通过智能化管理,包括人脸识别、智能电动门、自动智能呼梯打造无感通行,提高业主安全感。
此外,定制化高端服务,对于客户也很有吸引力。因为豪宅客户什么都不缺,最缺的就是时间,最贵的也是时间,所以服务对他们很重要。
比如顾佳他们居住的小区,物业工作人员服务细致态度就超级好,业主还没入住就提前摸清情况了。
比如很多豪宅项目除了提供顶级物业管理服务外,还会为业主提供个性化私人管家服务。



